Atlantis

Jessup Homes

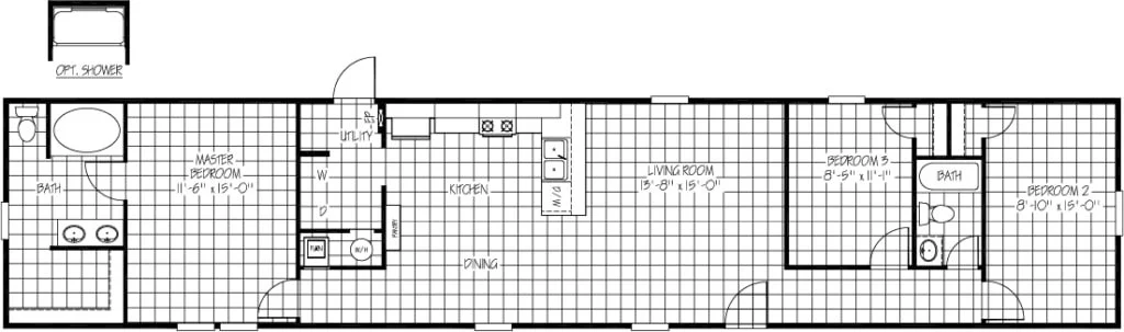
Floor Plan

View Virtual Tour